泵的知識 PUMP KNOWLEDGE
行業新聞
您當前位置:網站首頁 >> 泵的知識 >> 詳情內容
裝(zhuāng)配(pèi)式鋼板給水箱選用指南
時間:2013/8/19 來源:浙江香蕉视频网站江泵業有限公司(sī)
問:我們在貴公司選購了批水泵,要配(pèi)套不鏽鋼(gāng)裝配式水箱,有水箱的機構圖和尺(chǐ)寸嗎?
答:裝配(pèi)式鋼板給水箱可以參照以下方法進行設計(jì)製作:
裝配式鋼板給水箱

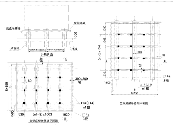
注:n3——墊鐵數量
裝配式鋼板給水箱選用表(一)

注:1.對高強度搪(táng)瓷給水箱厚(hòu)度δ,凡用(yòng)3、4者,均為5
2.水箱重量未含型鋼底架重量
裝配式鋼板給水箱選用表(biǎo)(二)

注:三種板(bǎn)塊均可(kě)在板內開孔接管,其開孔位置應盡量向(xiàng)板塊中心設置,而開孔接管外園與箱板翻邊的小距離不小於30
裝配式(shì)鋼板給水箱(xiāng)標準板圖

注:基礎一般為混凝土,也可為(wéi)其他材料
裝配式鋼(gāng)板給水箱基礎圖

裝配式鋼板給水箱型(xíng)鋼底架基礎圖
感謝您訪問我(wǒ)們香蕉视频网站江泵業的網站www.a-vested-interest.com,如有任(rèn)何水(shuǐ)泵疑(yí)問我們一定會盡心(xīn)盡(jìn)力為您提供(gòng)優質的服務.
- 下一篇(piān):設置儲(chǔ)水池應符合的要(yào)求
- 上一篇:PBG屏蔽式管道泵安裝尺寸圖






